Успейте купить коммерческое помещение

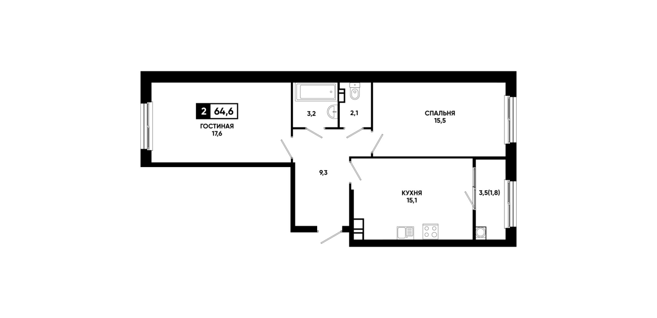
Планировка № 19

Сдача в 1 кв. 2026
1 подъезд
6 этаж
64,6 м²
7516210 ₽