Успейте купить коммерческое помещение

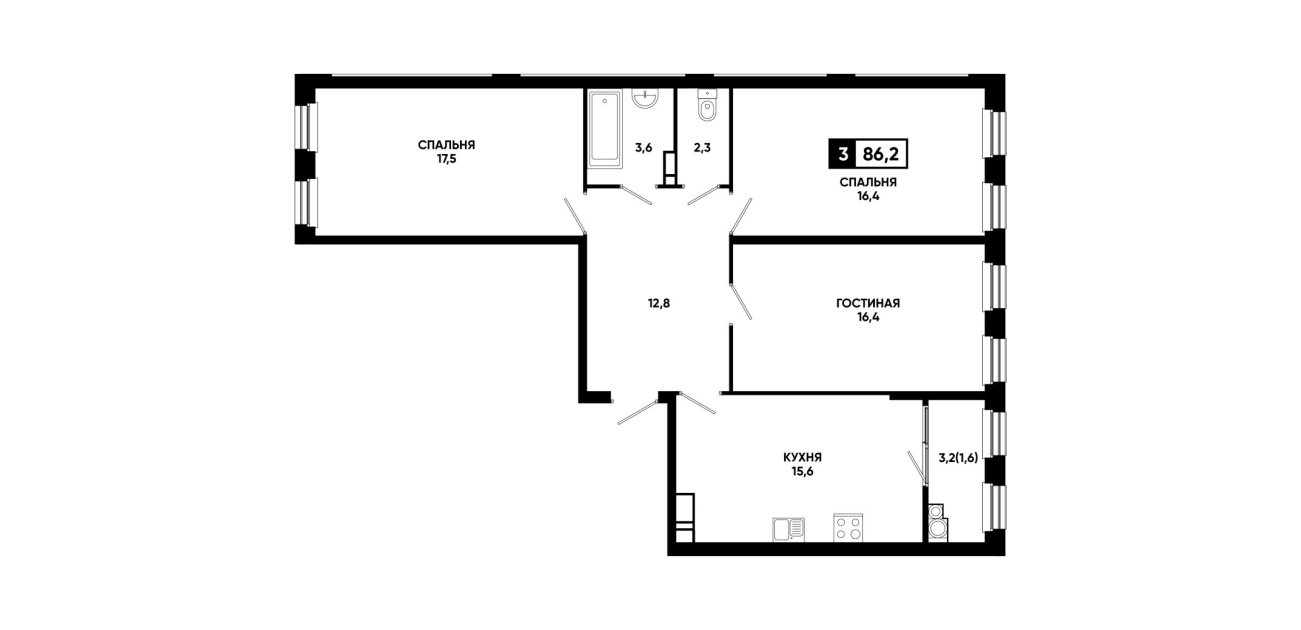
Планировка № 107

Сдача в 1 кв. 2026
2 подъезд
12 этаж
86,2 м²
9339770 ₽