Успейте купить коммерческое помещение

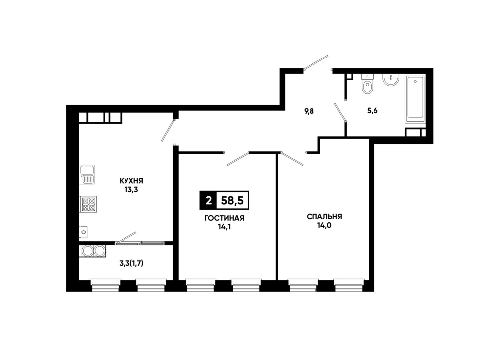
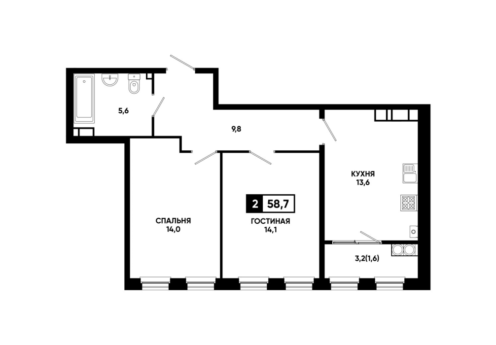
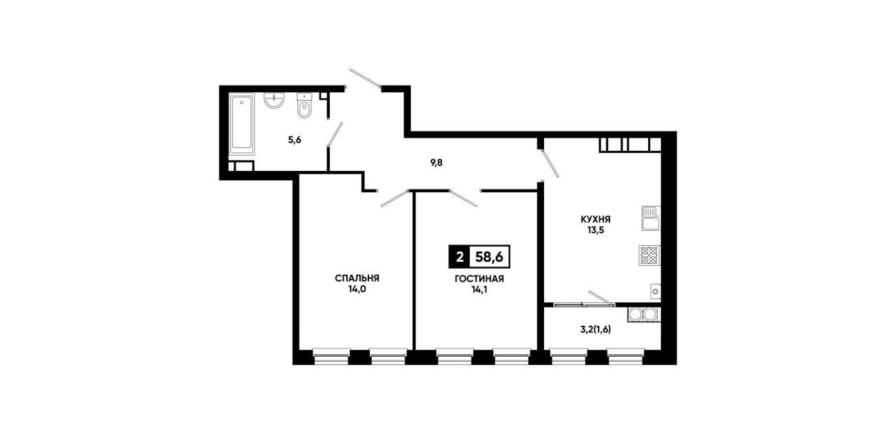
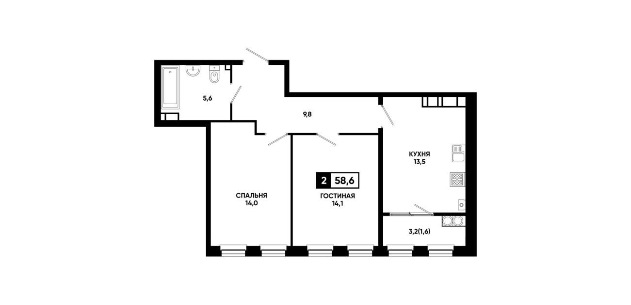
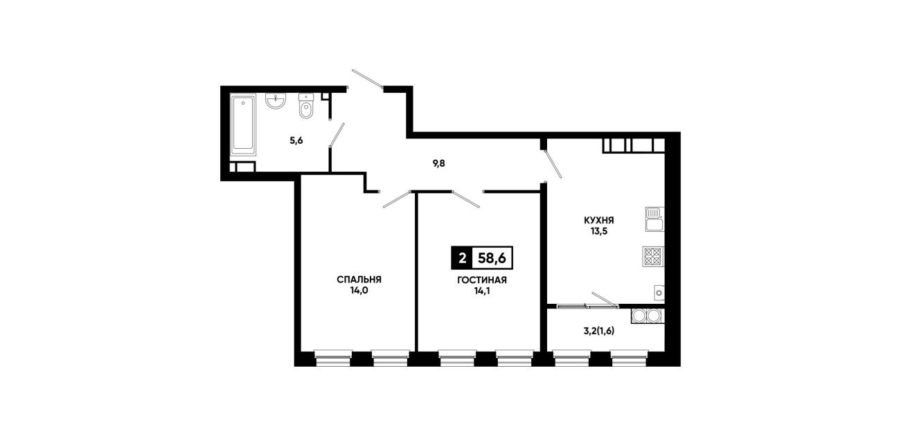
Планировка № 96

Сдача в 1 кв. 2026
1 подъезд
21 этаж
58,6 м²
6841550 ₽