Успейте купить коммерческое помещение

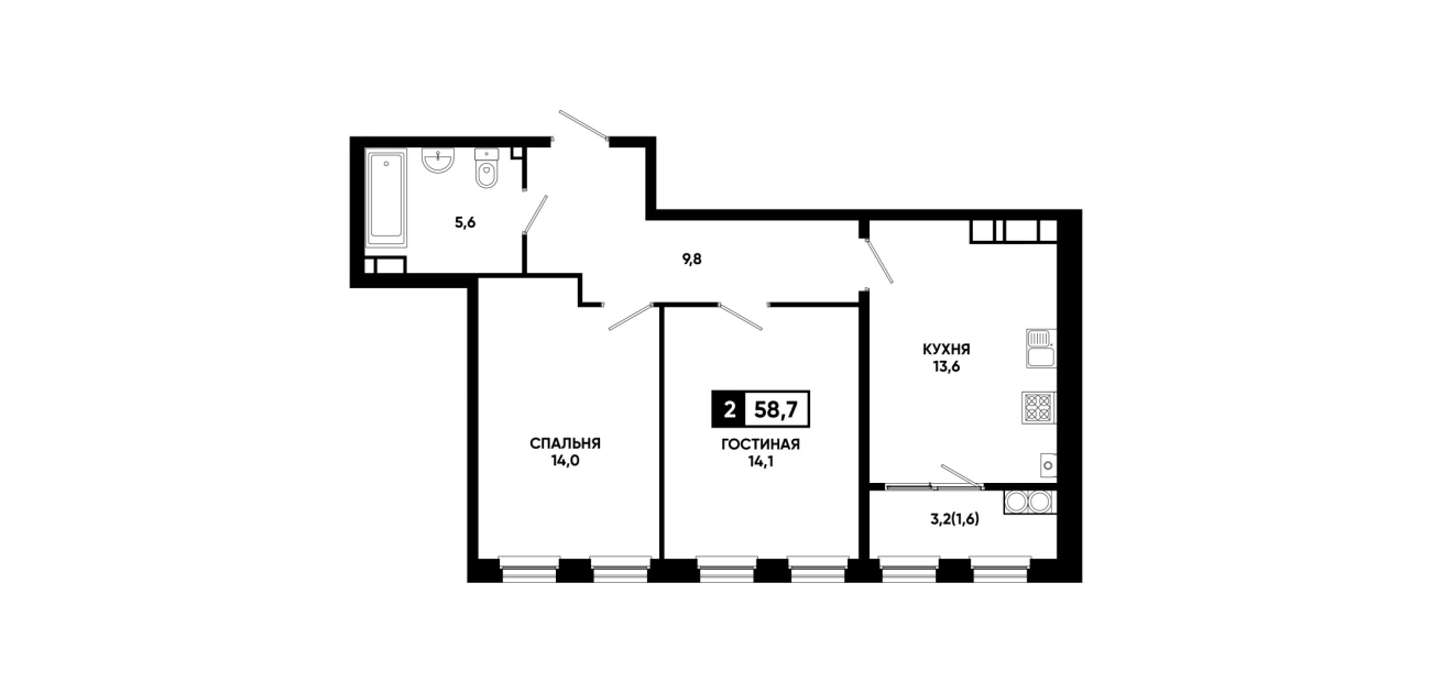
Планировка № 86

Сдача в 1 кв. 2026
1 подъезд
19 этаж
58,7 м²
6853225 ₽