Успейте купить коммерческое помещение

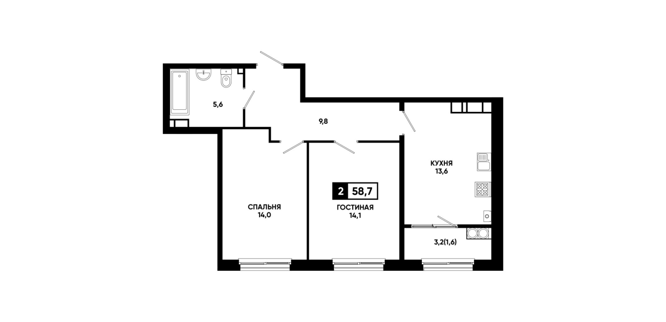
Планировка № 76

Сдача в 1 кв. 2026
1 подъезд
17 этаж
58,7 м²
6286770 ₽