Успейте купить коммерческое помещение

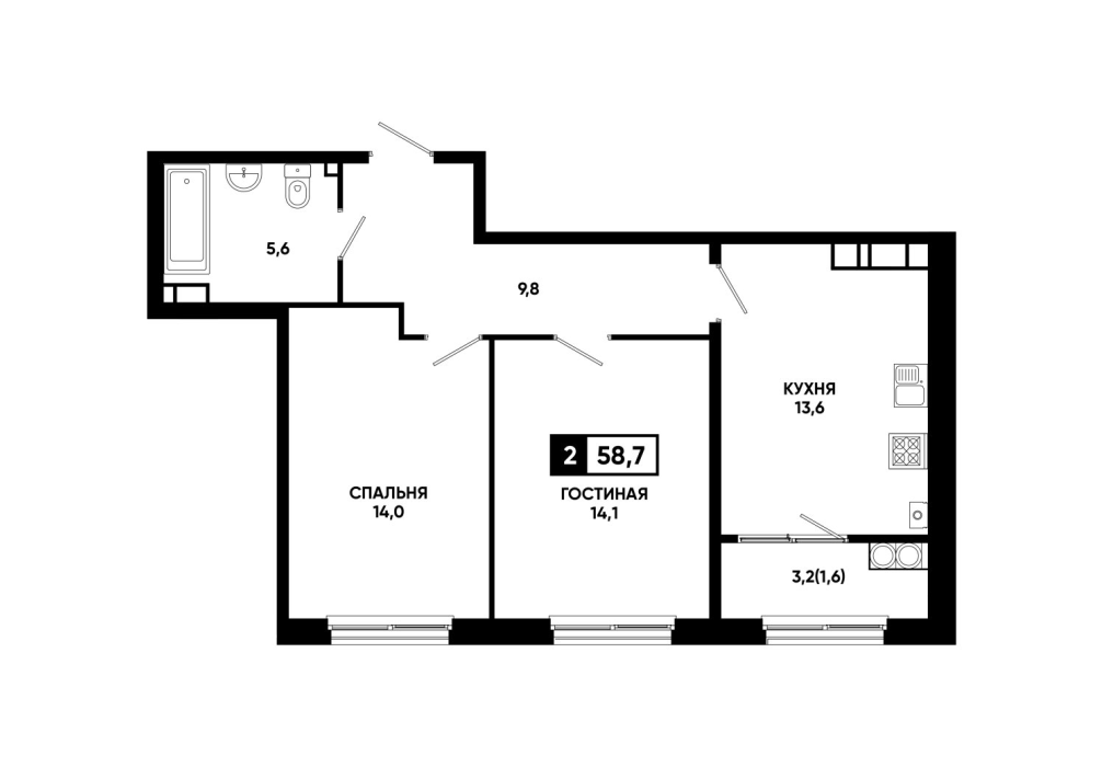
Планировка № 74

Сдача в 1 кв. 2026
1 подъезд
16 этаж
60,3 м²
7040025 ₽