Успейте купить коммерческое помещение

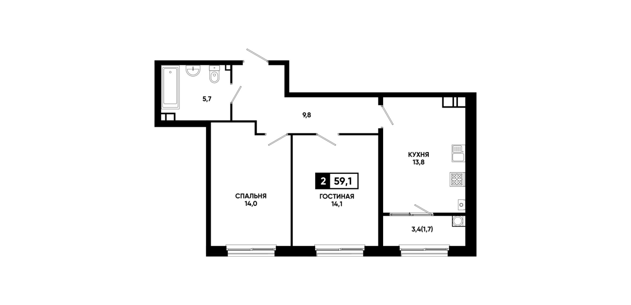
Планировка № 46

Сдача в 1 кв. 2026
1 подъезд
11 этаж
59,1 м²
6899925 ₽