Успейте купить коммерческое помещение

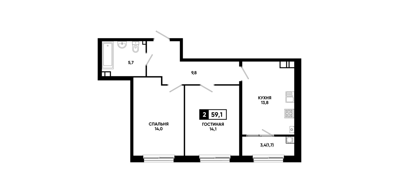
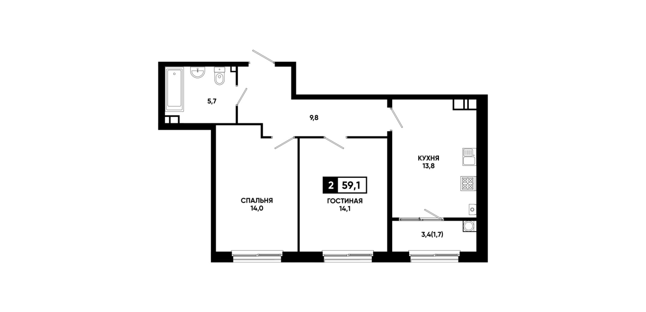
Планировка № 31

Сдача в 1 кв. 2026
1 подъезд
8 этаж
59,1 м²
6899925 ₽