Успейте купить коммерческое помещение

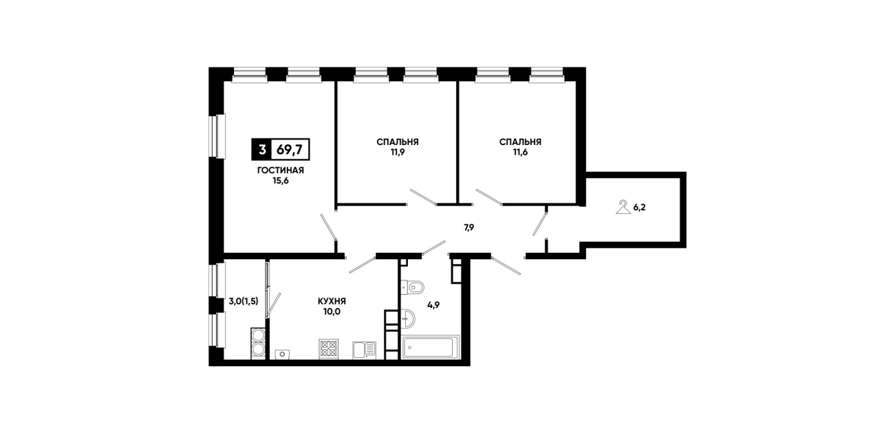
Планировка № 299

Сдача в 1 кв. 2026
3 подъезд
18 этаж
69,7 м²
6976970 ₽