Успейте купить коммерческое помещение

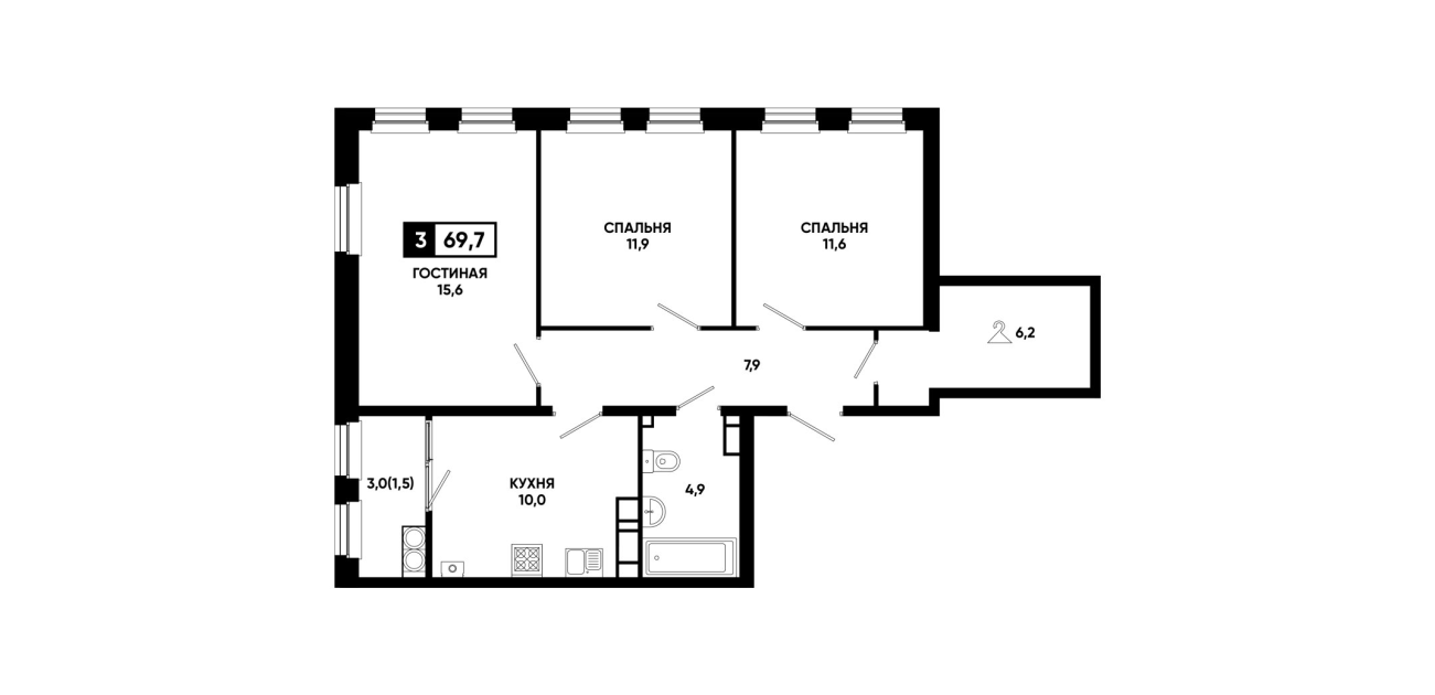
Планировка № 294

Сдача в 1 кв. 2026
3 подъезд
17 этаж
69,7 м²
6976970 ₽