Успейте купить коммерческое помещение

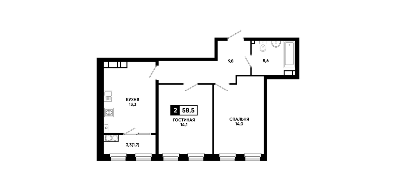
Планировка № 293

Сдача в 1 кв. 2026
3 подъезд
17 этаж
58,5 м²
6829875 ₽