Успейте купить коммерческое помещение

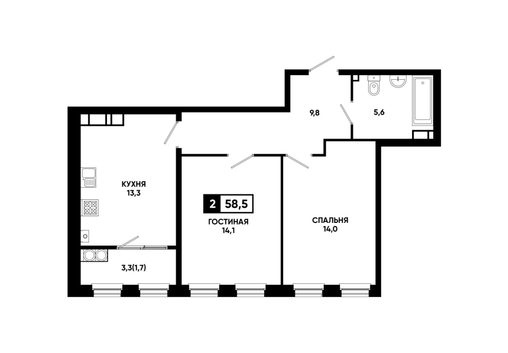
Планировка № 290

Сдача в 1 кв. 2026
3 подъезд
17 этаж
60,5 м²
7063375 ₽