Успейте купить коммерческое помещение

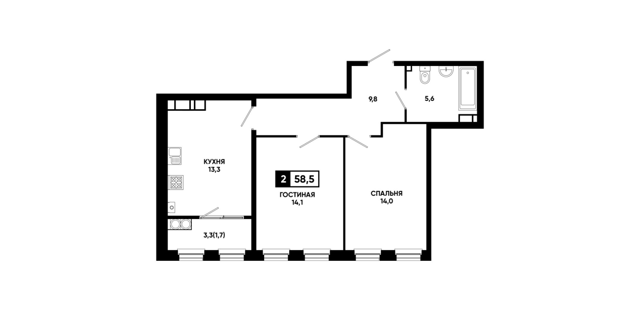
Планировка № 288

Сдача в 1 кв. 2026
3 подъезд
16 этаж
58,5 м²
6829875 ₽