Успейте купить коммерческое помещение

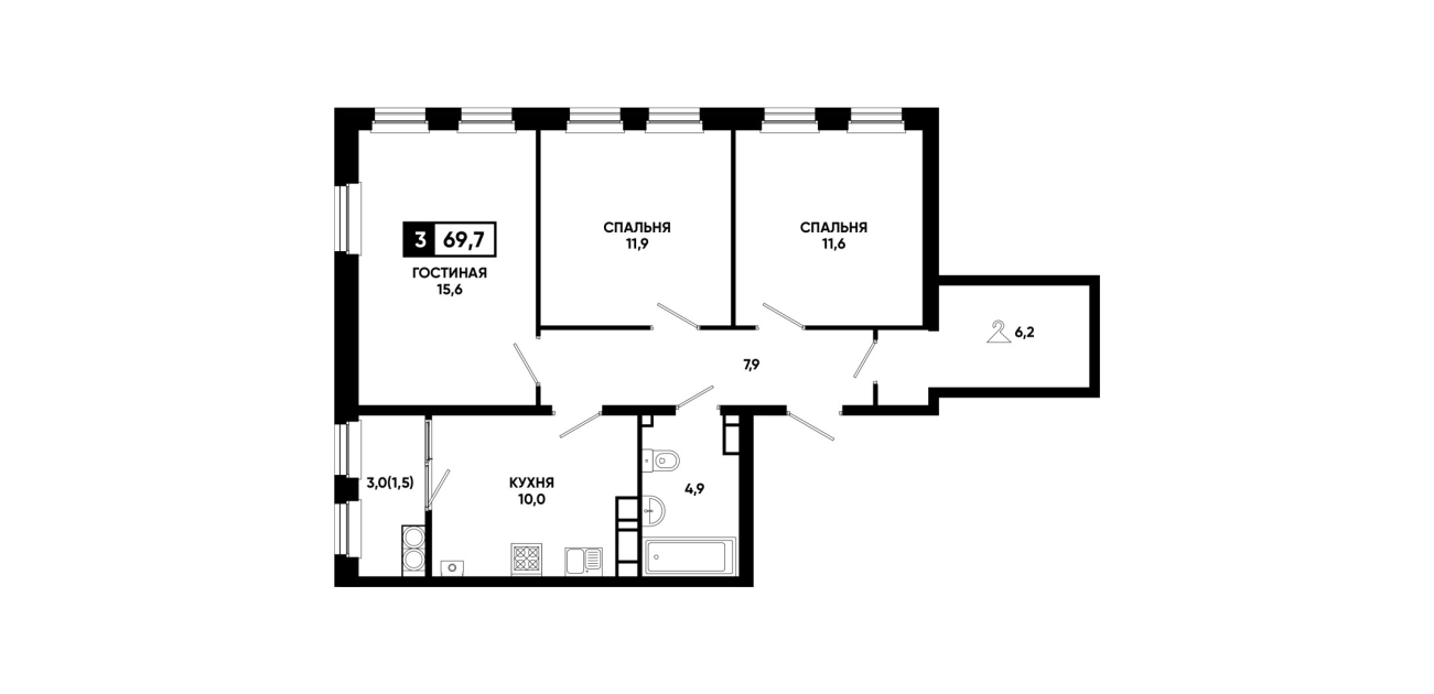
Планировка № 284

Сдача в 1 кв. 2026
3 подъезд
15 этаж
69,7 м²
7649575 ₽