Успейте купить коммерческое помещение

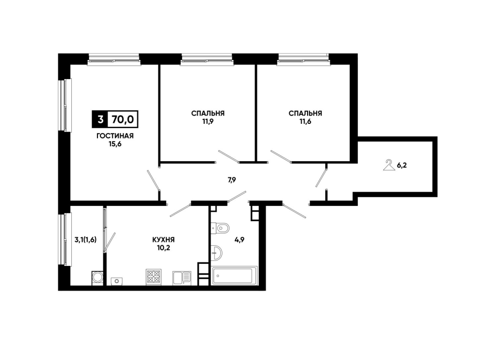
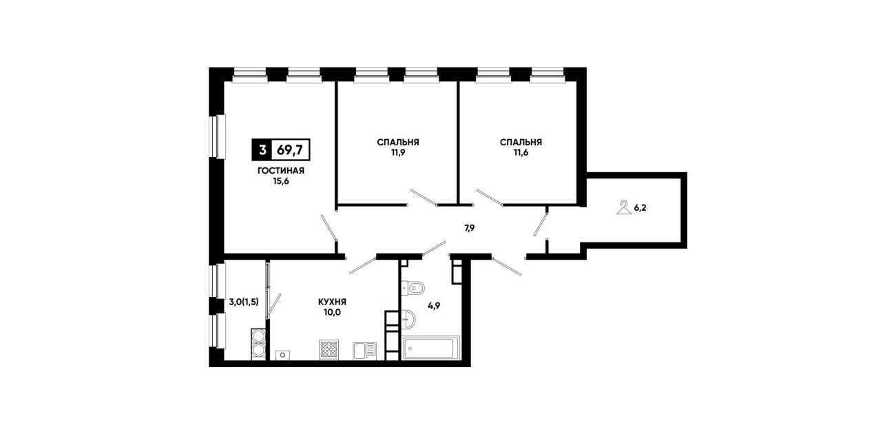
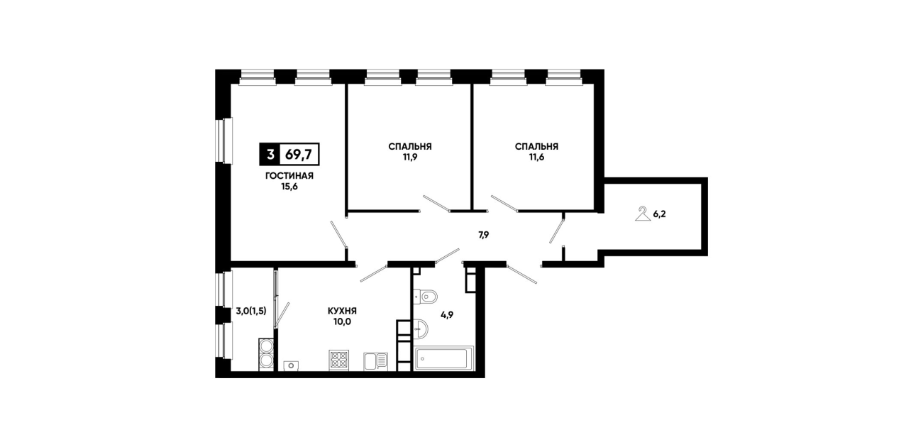
Планировка № 279

Сдача в 1 кв. 2026
3 подъезд
14 этаж
69,7 м²
7649575 ₽