Успейте купить коммерческое помещение

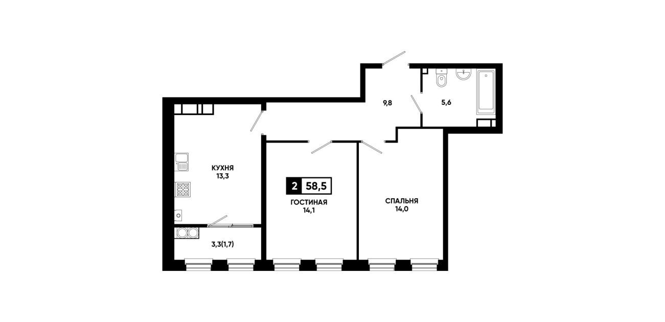
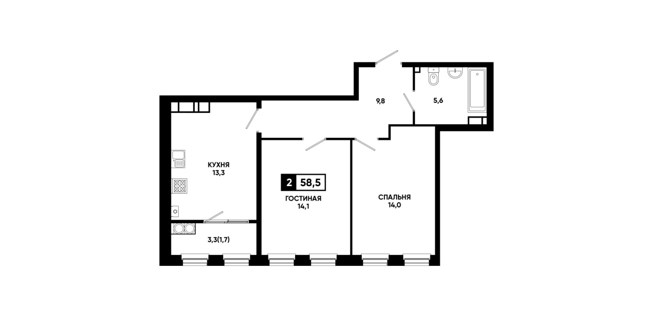
Планировка № 278

Сдача в 1 кв. 2026
3 подъезд
14 этаж
58,5 м²
6829875 ₽