Успейте купить коммерческое помещение

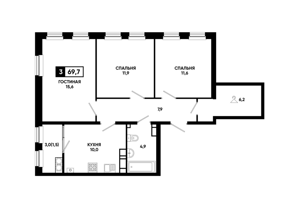
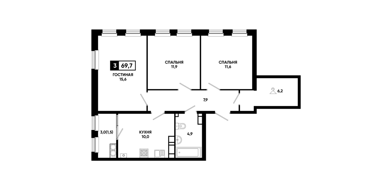
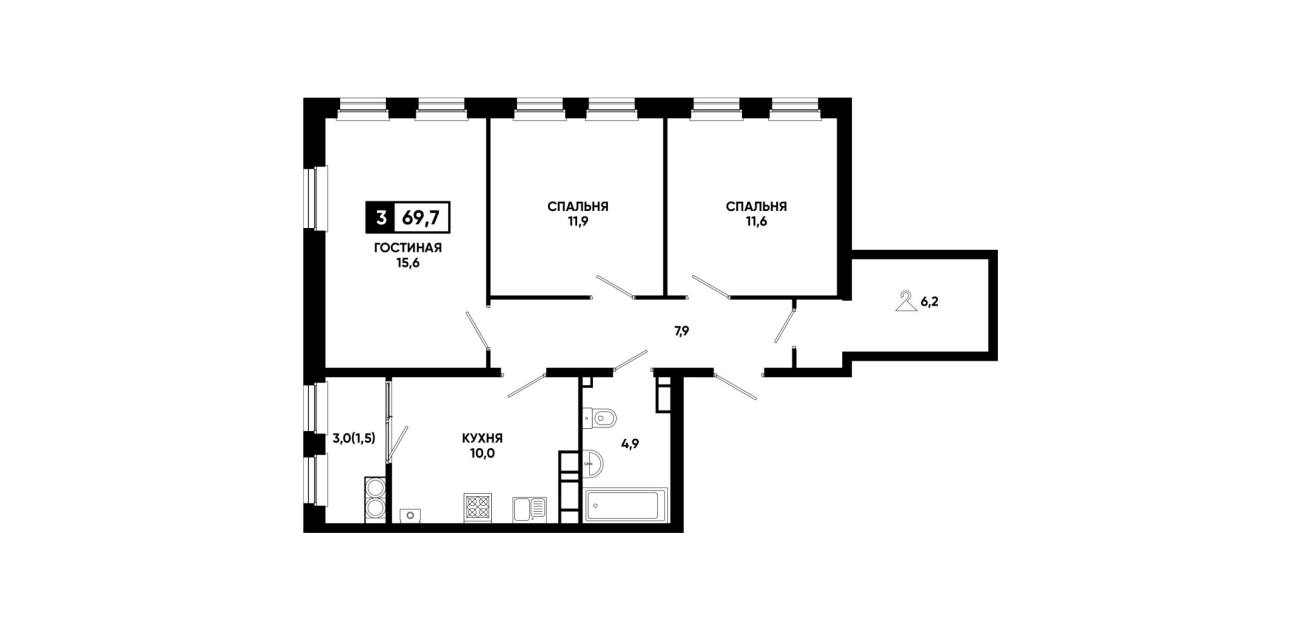
Планировка № 274

Сдача в 1 кв. 2026
3 подъезд
13 этаж
69,7 м²
7649575 ₽