Успейте купить коммерческое помещение

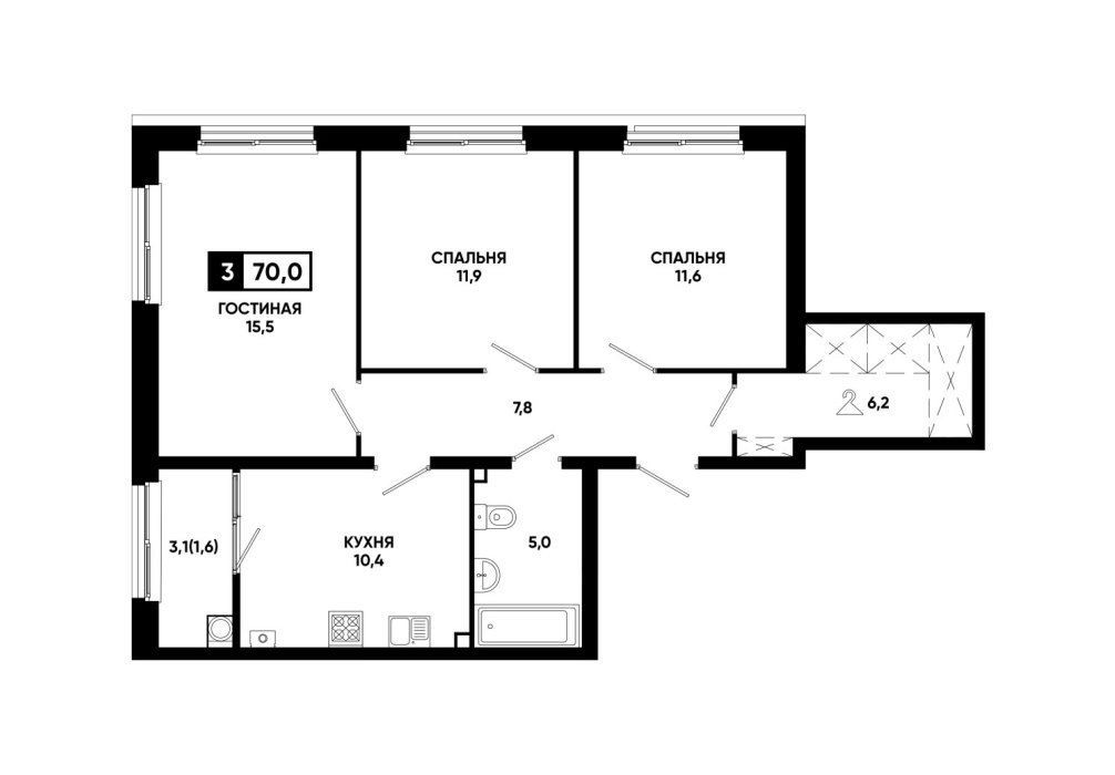
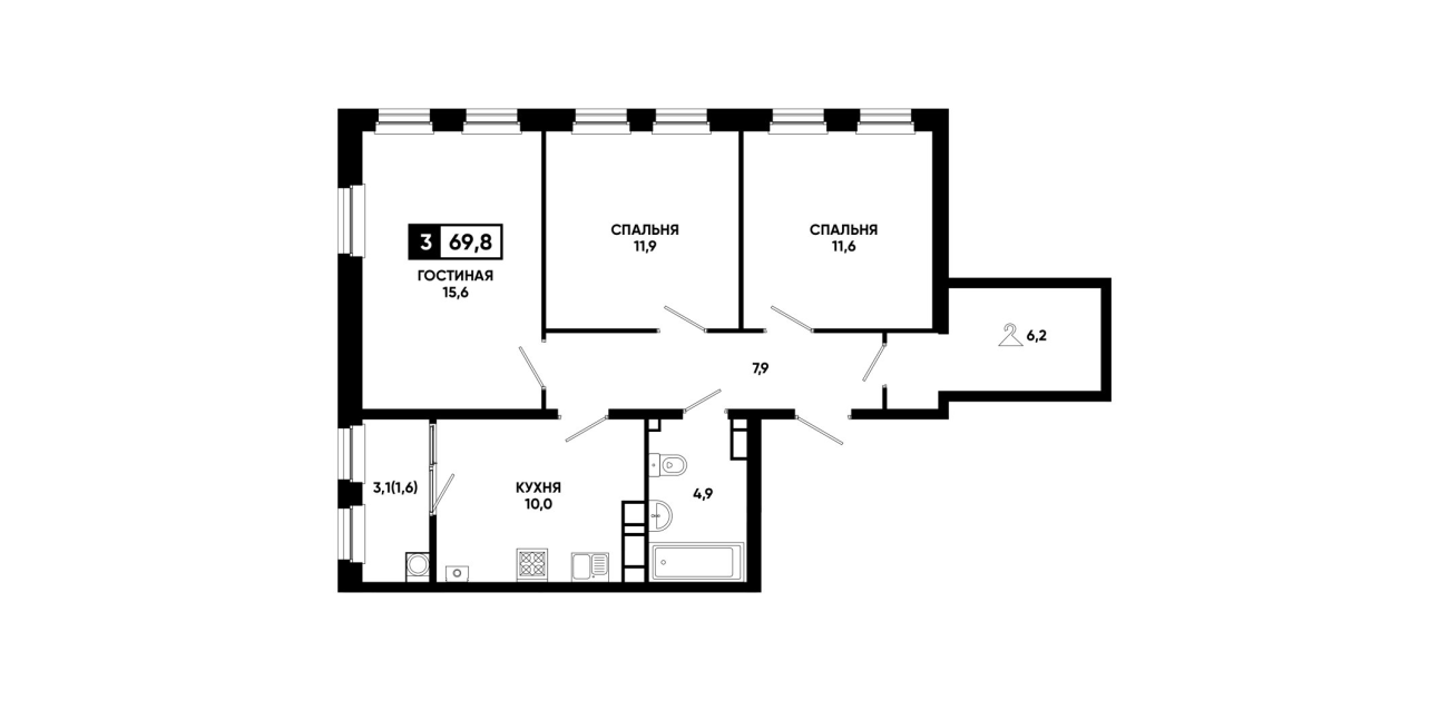
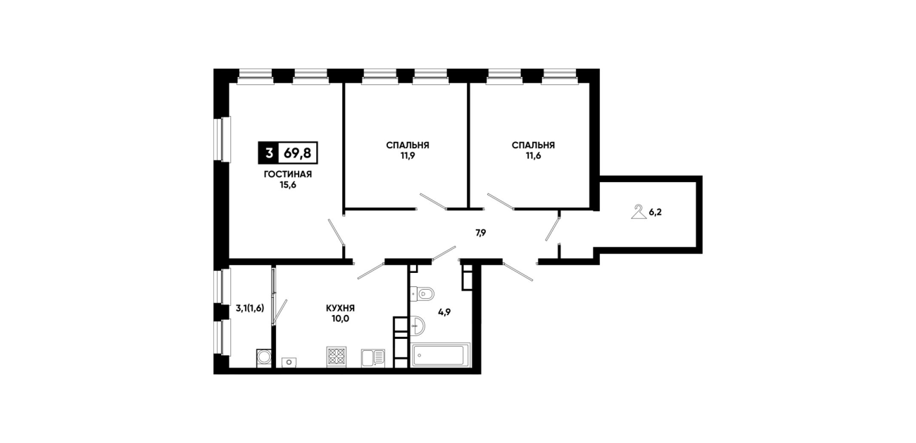
Планировка № 269

Сдача в 1 кв. 2026
3 подъезд
12 этаж
69,8 м²
7660550 ₽