Успейте купить коммерческое помещение

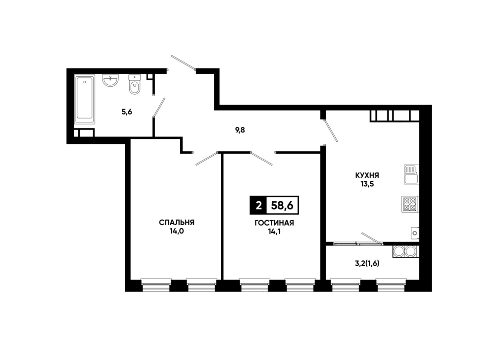
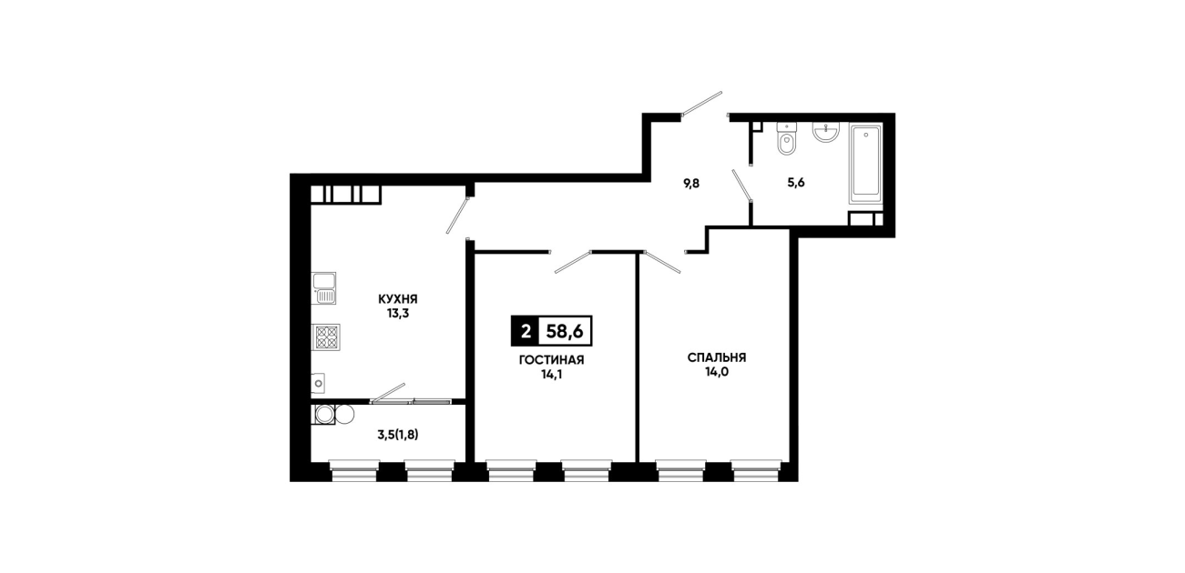
Планировка № 268

Сдача в 1 кв. 2026
3 подъезд
12 этаж
58,6 м²
6841550 ₽