Успейте купить коммерческое помещение

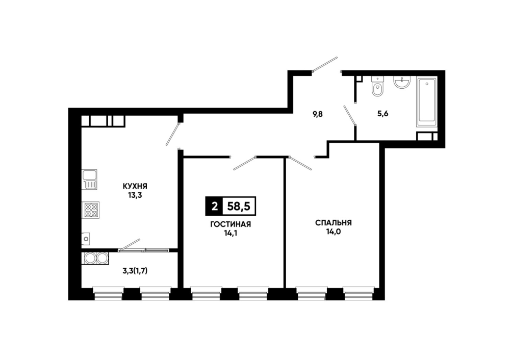
Планировка № 260

Сдача в 1 кв. 2026
3 подъезд
11 этаж
60,9 м²
6753810 ₽