Успейте купить коммерческое помещение

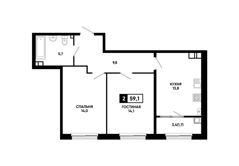
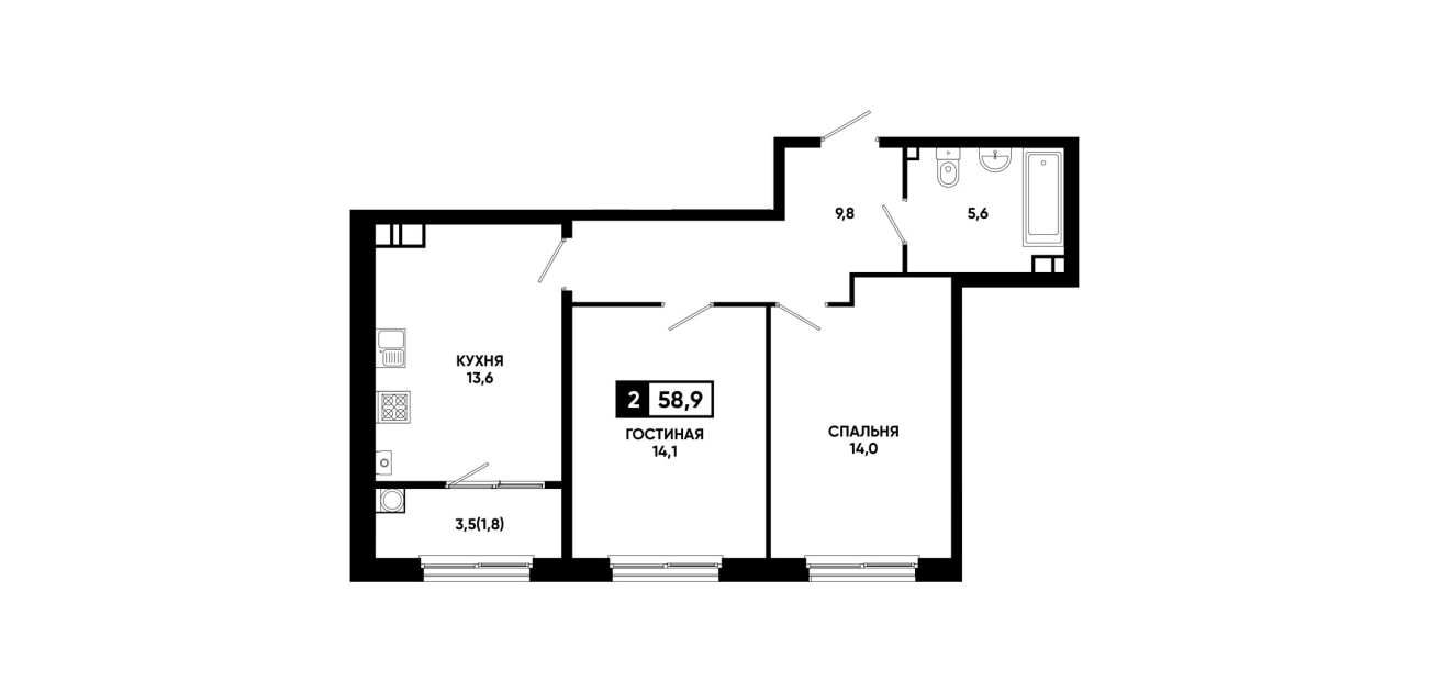
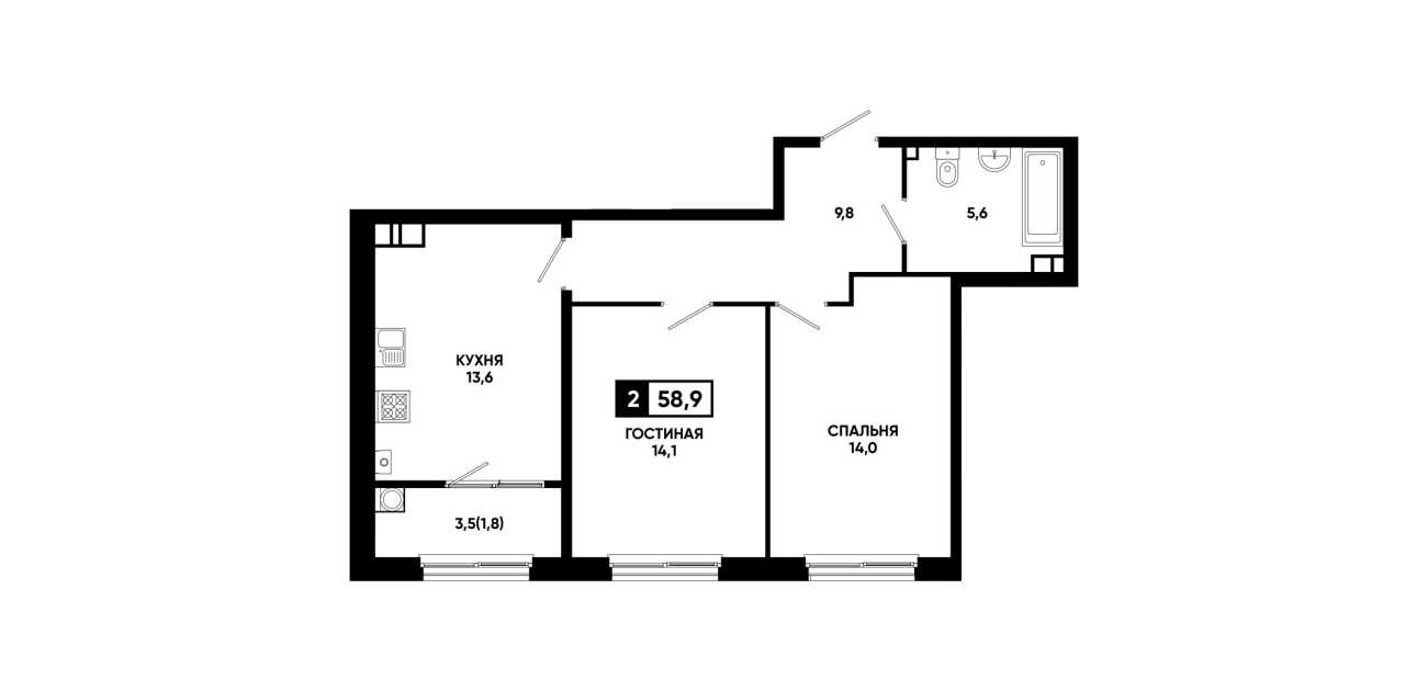
Планировка № 258

Сдача в 1 кв. 2026
3 подъезд
10 этаж
58,9 м²
6876575 ₽