Успейте купить коммерческое помещение

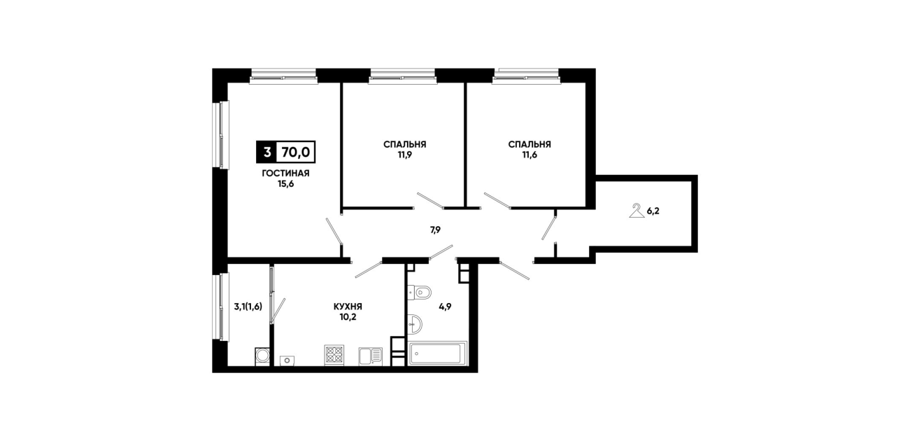
Планировка № 254

Сдача в 1 кв. 2026
3 подъезд
9 этаж
70 м²
 ₽