Успейте купить коммерческое помещение

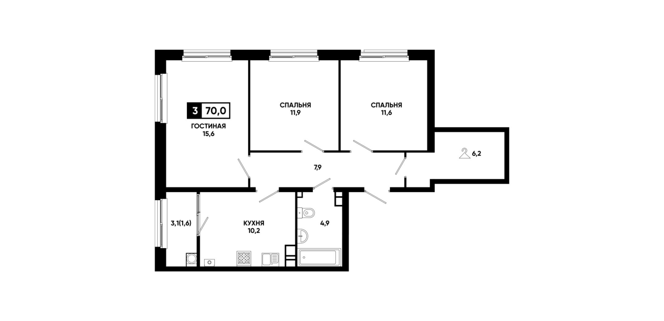
Планировка № 249

Сдача в 1 кв. 2026
3 подъезд
8 этаж
70 м²
7007000 ₽