Успейте купить коммерческое помещение

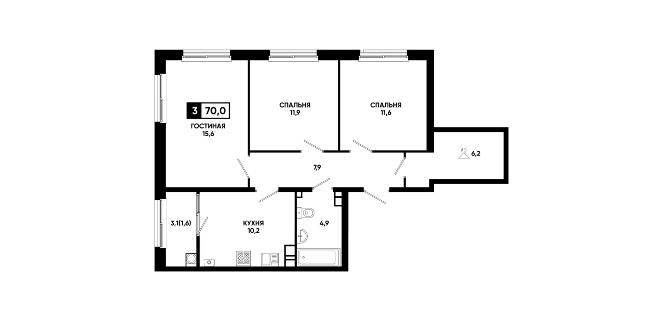
Планировка № 239

Сдача в 1 кв. 2026
3 подъезд
6 этаж
70 м²
7007000 ₽