Успейте купить коммерческое помещение

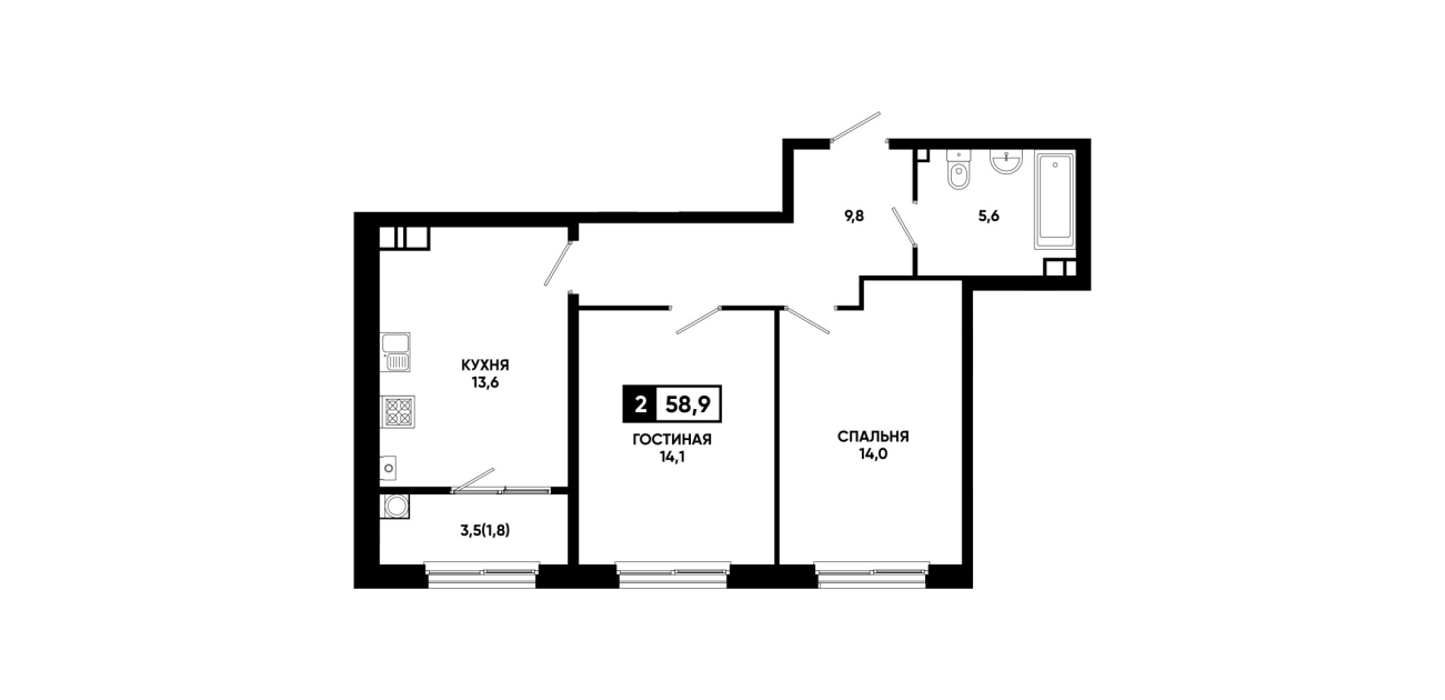
Планировка № 233

Сдача в 1 кв. 2026
3 подъезд
5 этаж
58,9 м²
6308190 ₽