Успейте купить коммерческое помещение

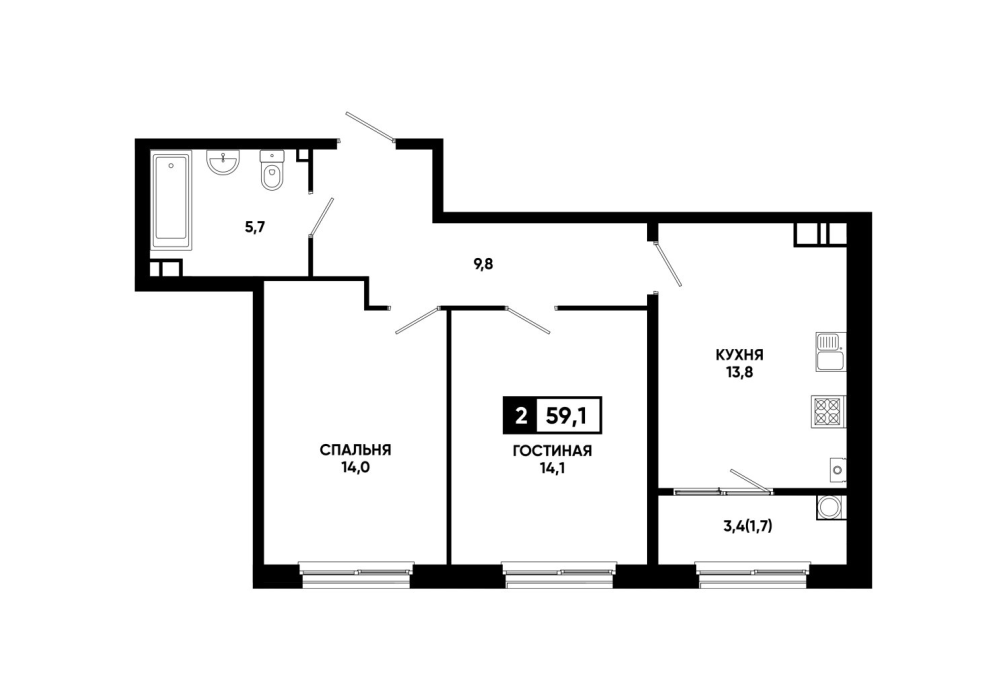
Планировка № 21

Сдача в 1 кв. 2026
1 подъезд
6 этаж
59,1 м²
6554190 ₽