Успейте купить коммерческое помещение

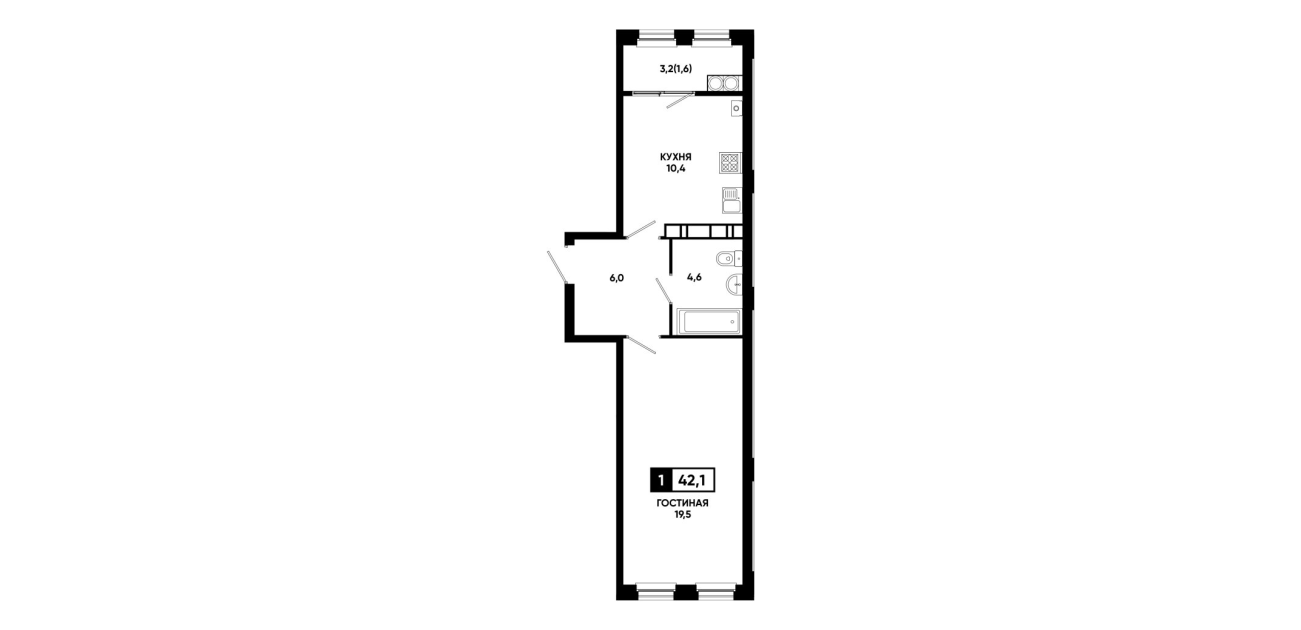
Планировка № 205

Сдача в 1 кв. 2026
2 подъезд
17 этаж
42,1 м²
4593110 ₽