Успейте купить коммерческое помещение

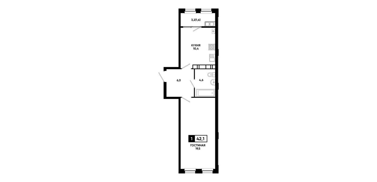
Планировка № 193

Сдача в 1 кв. 2026
2 подъезд
15 этаж
42,1 м²
4593110 ₽