Успейте купить коммерческое помещение

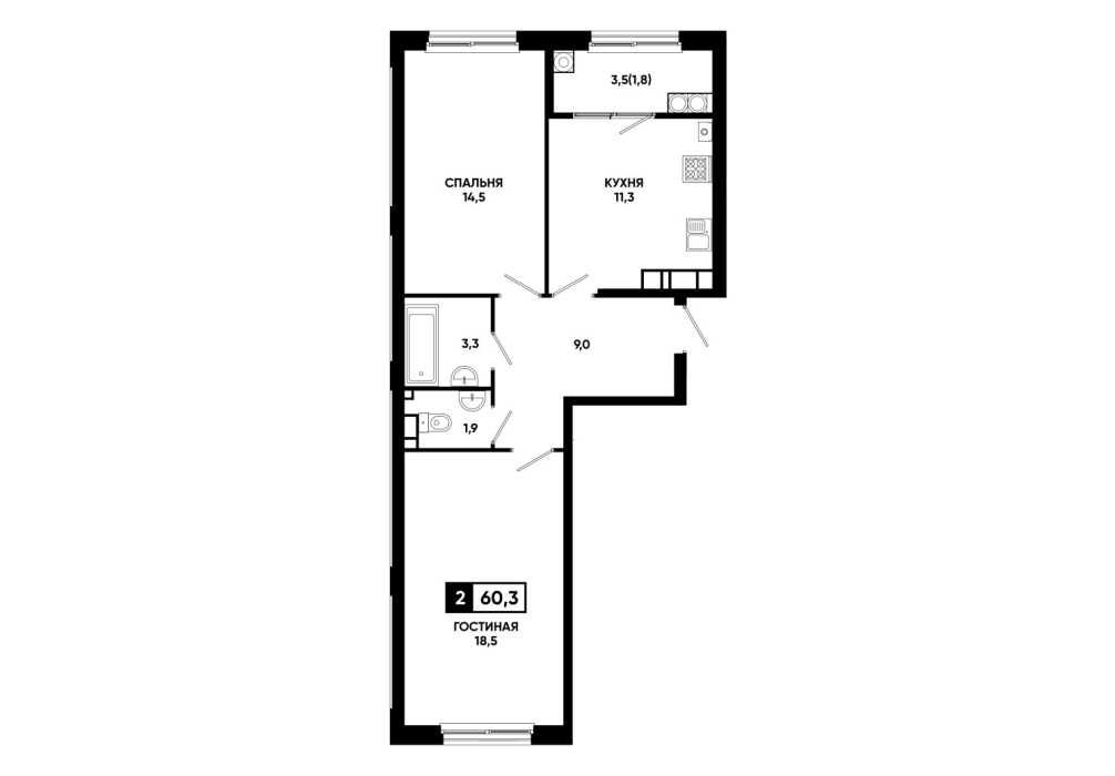
Планировка № 179

Сдача в 1 кв. 2026
2 подъезд
12 этаж
61,9 м²
6629490 ₽