Успейте купить коммерческое помещение

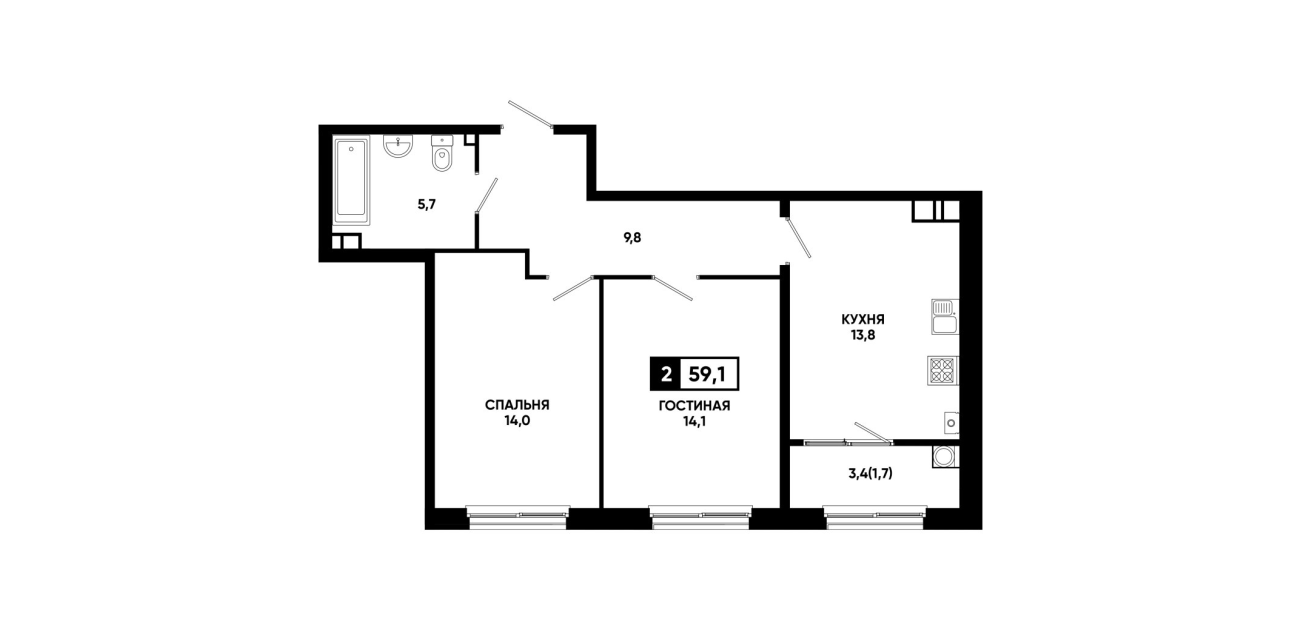
Планировка № 16

Сдача в 1 кв. 2026
1 подъезд
5 этаж
59,1 м²
6329610 ₽