Успейте купить коммерческое помещение

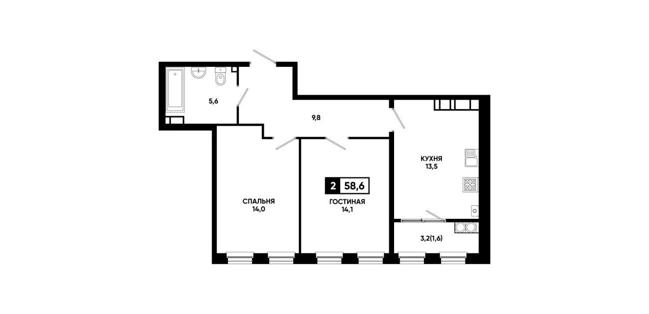
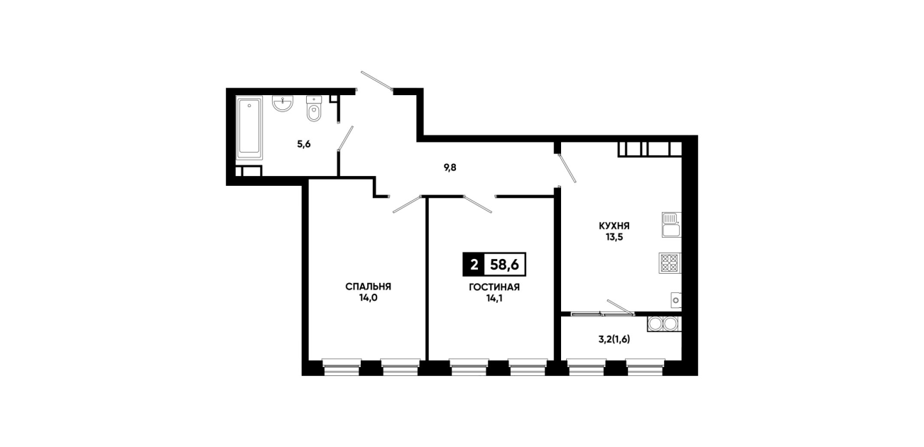
Планировка № 111

Сдача в 1 кв. 2026
1 подъезд
24 этаж
58,6 м²
6841550 ₽