Успейте купить коммерческое помещение

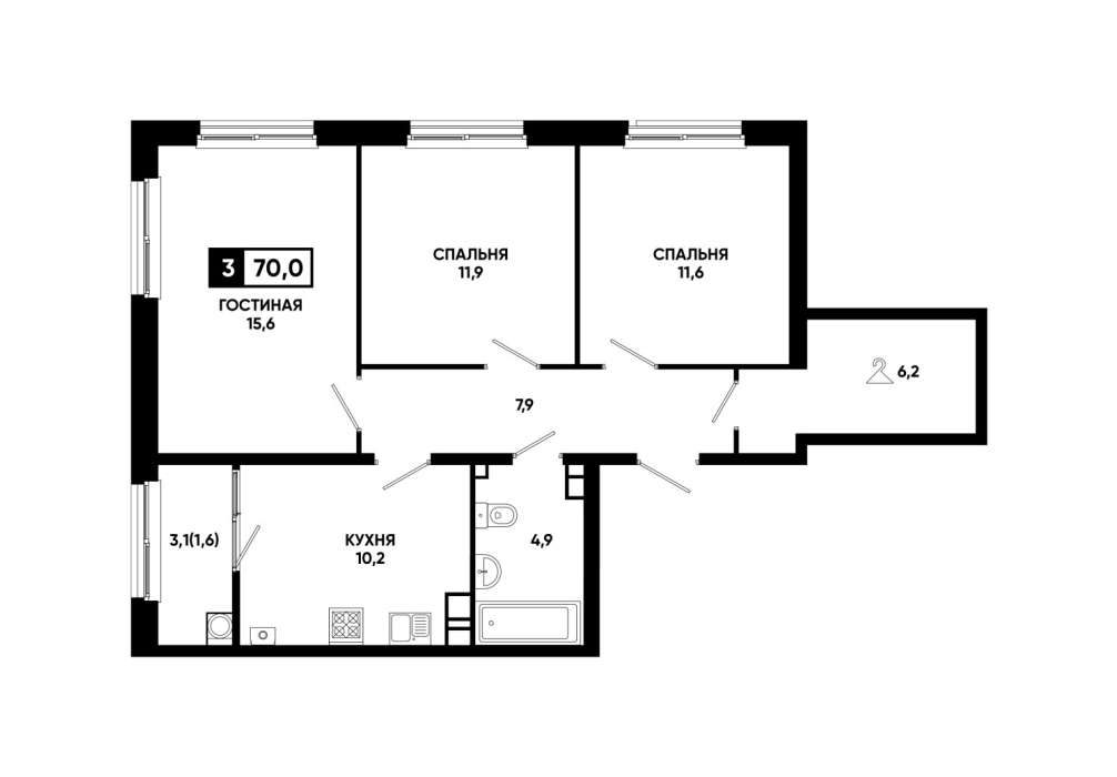
Планировка № 105

Сдача в 1 кв. 2026
1 подъезд
23 этаж
64 м²
6406400 ₽