Успейте купить коммерческое помещение

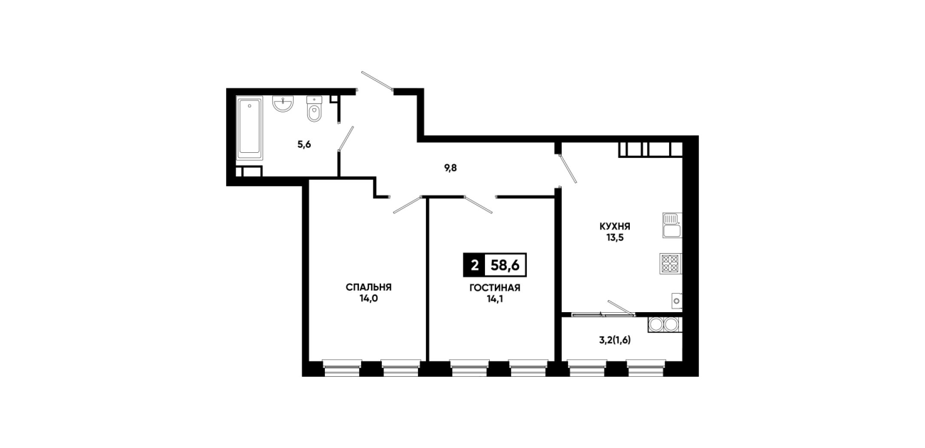
Планировка № 101

Сдача в 1 кв. 2026
1 подъезд
22 этаж
58,6 м²
6841550 ₽